3.5-room Apartment in Ebikon - CHF 2'150/month | HomeMatch
1 / 6
3.5-room Apartment in Ebikon
CHF2'150/Month92m²
Feldmatt 12, 6030 Ebikon
Details
Property TypeApartment
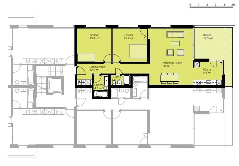
Living Space92 m²
Rooms3.5
Floor4. OG
Year Built2010
Listing IDAiXgGDlj
Costs
Net RentCHF 1'940
Additional CostsCHF 210
Gross RentCHF 2'150
Description
MIETEN OHNE KAUTION - Ruhig, sonnig & modern wohnen in Ebikon
Wir vermieten per 01.07.2026 an der Feldmatt 12 in Ebikon eine traumhafte Wohnung, welche über einen attraktiven Innenausbau mit zeitgemässen Materialien und vielen Details verfügt.- Bodenbeläge Parkett und Platten- Helle Wohnräume- Moderne Küchengeräte- Bad/WC mit Badewanne- Separate Dusche/WC- Ei...