3.5-room Apartment in Worblaufen - CHF 1'640/month | Home...
1 / 7
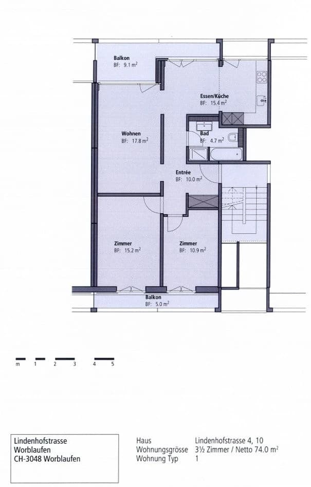
3.5-room Apartment in Worblaufen
CHF1'640/Month74m²
Lindenhofstrasse 10, 3048 Worblaufen
Details
Property TypeApartment
Living Space74 m²
Rooms3.5
Floor4. OG
Year Built1966
Listing IDI3f0LNtq
Costs
Net RentCHF 1'420
Additional CostsCHF 220
Gross RentCHF 1'640
Description
3.5-Zimmer-Wohnung im 4.OG (mit Lift)
Wir vermieten per 01.05.2026 oder nach Vereinbarung eine topmoderne 3.5 Zimmerwohnung. Wir suchen einen Nachmieter für die Wohnung, welche mit den folgenden Vorzügen punktet: - Moderne Küche mit grauem Plattenboden, Geschirrspüler und Tageslicht - Attraktiver Parkettboden im Wohn- und Schlafzimmer -...