3-room Apartment in Riehen - CHF 1'640/month | HomeMatch
1 / 9
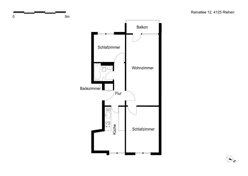
3-room Apartment in Riehen
CHF1'640/Month63m²
Rainal. 16, 4125 Riehen
Details
Property TypeApartment
Living Space63 m²
Rooms3
Floor1. OG
Year Built1961
Listing IDImSF0LNt
Costs
Net RentCHF 1'440
Additional CostsCHF 200
Gross RentCHF 1'640
Description
Ruhige Wohnlage im Grünen
In der dynamischen Kulturlandschaft Riehen zwischen den Zentren Basel, Lörrach und Weil am Rhein, vermieten wir per 01.06.2026 eine gemütliche Wohnung mit folgender Austattung:- Küche mit Glaskeramik und Naturstein-Arbeitsplatte- Bad mit Badewanne- Plattenboden in Küche, Bad, Gang- Parkettboden in a...