4.5-Zimmer-Haus in Bürchen - CHF 790'000 | HomeMatch
1 / 19
4.5-Zimmer-Haus in Bürchen
CHF790'00090m²
Obere Ringstrasse, 3935 Bürchen
Details
ObjekttypHaus
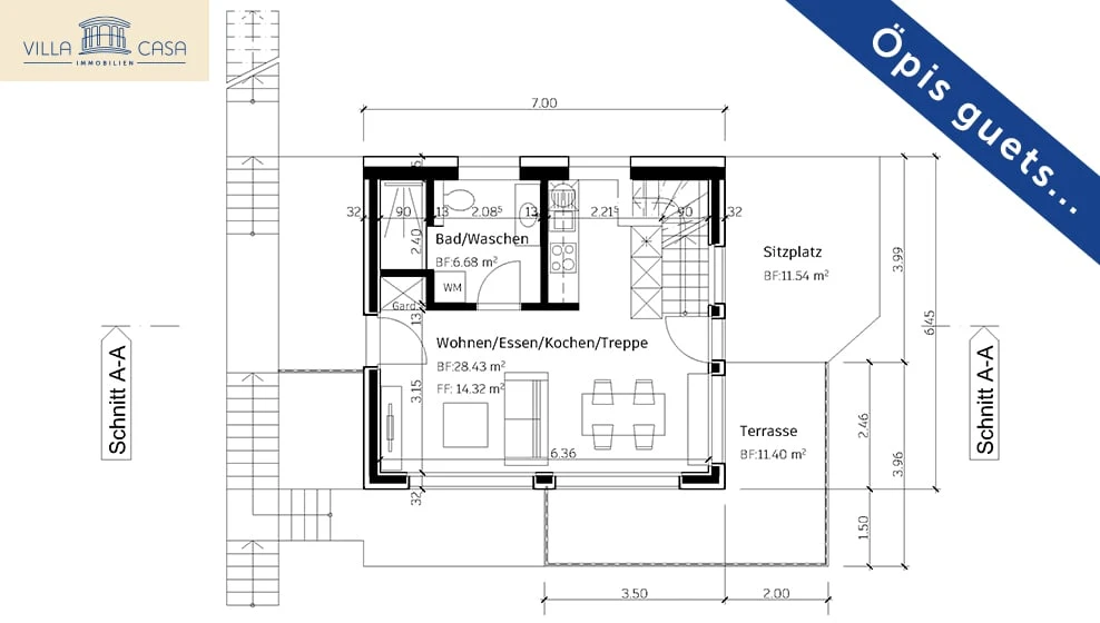
Wohnfläche90 m²
Zimmer4.5
Baujahr2026
Inserats-IDE24uTqQH
Kaufdetails
KaufpreisCHF 790'000
Preis pro m²CHF 8'778
Beschreibung
Neubau ALPINA / Eigenheim statt Kompromiss – Ihr neues Familienhaus für CHF 790'000.- inkl. PP
Ihr eigenes Haus in Bürchen – durchdacht, nachhaltig und bezahlbarEin eigenes Haus. Ein eigener Garten. Ruhe, Sonne und Platz für die Familie – ohne ein Budget von über einer Million.An der Oberen Ringstrasse in Bürchen (VS) entsteht dieses moderne 4½-Zimmer-Einfamilienhaus, das sich bewusst auf das...