3.5-Zimmer-Wohnung in Sissach - CHF 1'700/Monat | HomeMatch
1 / 8
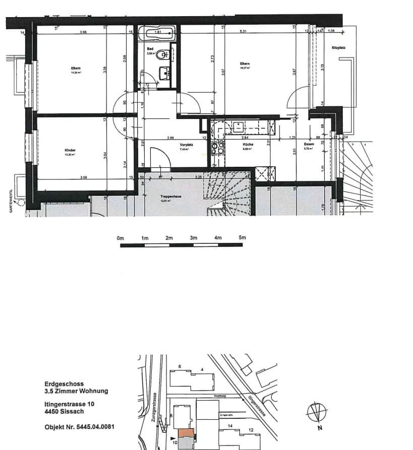
3.5-Zimmer-Wohnung in Sissach
CHF1'700/Monat72m²
Itingerstr. 10, 4450 Sissach
Details
ObjekttypWohnung
Wohnfläche72 m²
Zimmer3.5
StockwerkEG
Baujahr1978
Inserats-IDGy3iQwGc
Kosten
NettomieteCHF 1'450
NebenkostenCHF 250
BruttomieteCHF 1'700
Beschreibung
Ihr neues Zuhause im schönen Sissach
Wir vermieten per sofort oder nach Vereinbarung diese 3.5-Zimmerwohnung an der Itingerstrasse 10 in Sissach. Die Liegenschaft befindet sich an toller Lage, nähe Bahnhof sowie Schulhaus.Die Wohnungen wurden alle 2014 saniert und verfügen somit über einen tollen Ausbau.Weitere Eckpunkte zu den Wohnung...