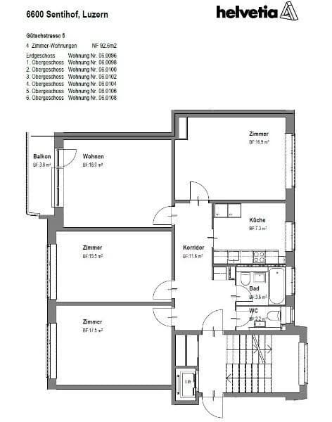
Wir vermieten eine 4 Zimmerwohnung ideal für Familien. - moderne Küche mit Granitabdeckung, Glaskeramik und Geschirrspüler - zeitgemässes Badezimmer - Korridor mit Einbauschränken - Parkett im Wohn-, Schlaf- resp. Kinderzimmern - Küche und Nasszellen mit Platten - separates WC - Keller- und Estri...